|
Пневмораспределители В64-14А-05, В64-15А-05 с двухсторонним электроуправлением (смотрите с односторонним электроуправлением) с условными проходами соответственно 16 и 20 мм со стыковом присоединением (на плиту), пружинным или пневматическим возвратом применяются для управления потоком сжатого воздуха в пневмоприводах общего назначения. В комплект поставки для распределителя B64-14A-05 входят четыре кольца уплотнительных 022-025-19, а в комплект пневмораспределителя B64-15A-05 четыре кольца уплотнительных 028-032-25. Фотографии пневмораспределителей В64-14А-05, В64-15А-05
|
||
|
В пневмораспределителях с двусторонним электропневматическим управлением В64-14А-05, В64-15А-05 стыкового присоединения перемещение поршня с золотником осуществляется при подаче напряжения на электромагнитную катушку типа П-ЭПР3 (по ТУ на распределители - катушка В64-14А-03-700) пилотного клапана. Это приводит к тому, что сжатый воздух по отверстию пилотного клапана поступает под соответствующий торец поршня. Для возврата поршня в исходное положение необходимо для пневмораспределителей с двухсторонним электропневматическим необходимо подать напряжение на электромагнитную катушку второго пилотного клапана. Подробнее о принципе работы пневмораспределителей В64 c двухсторонним электромагнитным управлением можно узнать здесь. |
|||
Основные характеристики пневмораспределителей В64-14А-05, В64-15А-05
| Параметр | Нормы для типоразмеров | |||
| В64-14А-05 | В64-15А-05 | |||
| Условный проход, мм | 16 | 20 | ||
| Номинальное / минимальное давление, МПа | 0,63 / 0,25 | |||
| Пропускная способность, Кv по ГОСТ14691-69, м³/ч, не менее | 2,8 | 3,0 | ||
| Время срабатывания при давлении 0,4 МПа, с, не более | 0,1 | 0,2 | ||
| Номинальное напряжение питания, В: постоянного тока / переменного тока 50 Гц / переменного тока 60 Гц | 24 (12, 48,110) / 110,220 (380) / 110,220 | |||
| Номинальная потребляемая мощность, не более: постоянного тока, Вт / переменного тока 50 Гц, ВА / переменного тока 60 Гц, ВА | 7 / 9 / 12 | |||
| Масса пневмораспределителя, кг | 2,0 | 2,7 | ||
Структура условного обозначения пневмораспределителей В64-14А-05, В64-15А-05
| В64 | - | 1 | 4А | - | 05 | УХЛ | 4 | ||||
|
Категория размещения по ГОСТ 15150 (4)
|
|||||||||||
|
|
|||||||||||
|
Климатическое исполнение по ГОСТ 15150 (УХЛ, О)
|
|||||||||||
|
|
|||||||||||
|
Стыковое присоединение пневмолиний
|
|||||||||||
|
|
|||||||||||
|
Условный проход: 3 - 10 мм; 4 - 16 мм; 5 - 20 мм
|
|||||||||||
|
|
|||||||||||
|
Способ управления: 1 - двухстороннее управление; 2 - одностороннее управление и пневматический возврат; 3 - одностороннее управление и пружинный возврат
|
|||||||||||
|
|
|||||||||||
|
Пневмораспределитель с электропневматическим управлением
|
|||||||||||
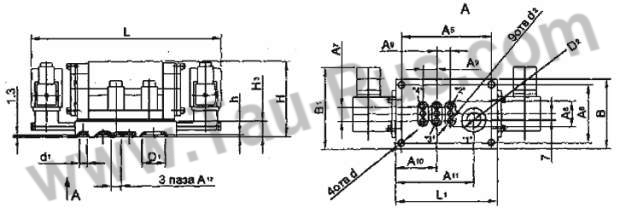
Габаритные и присоединительные размеры пневмораспределителей В64-14А-05, В64-15А-05
| Обозначение | А5 | А6 | А7 | А8 | А9 | А10 | А11 | А12 | d | d2 | D1 | D2 | h | B | В1 | H | H3 | L | L1 |
| В64-14А-05 | 91 | 59 | 16 | 33 | 14 | 42,5 | 80,5 | 12 | 7 | 7 | 25 | 16 | 1,3 | 72 | 86 | 78 | 17 | 191 | 104 |
| В64-15А-05 | 117 | 77 | 20 | 42 | 18 | 52,5 | 102,5 | 16 | 9 | 9 | 32 | 21 | 1,75 | 90 | 95 | 93 | 22 | 217 | 130 |
Пример записи условного обозначения распределителя четырехлинейного, с электропневматическим двухсторонним управлением, условным проходом 16 мм, со стыковым присоединением пневмолиний, климатического исполнения УХЛ, категории размещения 4: пневмораспределитель В64-14А-05 УХЛ4 ТУ2-053-1633-83.
То же, для распределителя с двусторонним электроуправлением, условным проходом 20 мм, со стыковым присоединением пневмолиний, климатического исполнения О, категории размещения 4: пневмораспределитель В64-15А-05 О4 ТУ2-053-1633-83.
За более подробной информацией или консультацией обращайтесь к специалистам нашей компании.
МЫ ВСЕГДА РАДЫ ПОМОЧЬ ВАМ И ВАШЕМУ БИЗНЕСУ!


