Сначала популярные
Загрузить еще
1
2
Станция смозочная MPT-3-NY-200-25 (60.821.1)
|
Станции типа MPT-200 предназначены для подачи жидкого смазочного материала к импульсным смазочным питателям и служат для комплектации импульсных смазочных систем с электроприводом. Станции оснащены электронасосом с номинальной подачей 200 см³/мин, для жидкого смазочного материала. Станции МРТ-200 поставляются с металлическим баком объемом 3 л, либо пластиковым баком объемом 3 или 6 литров. Технические характеристики
Исполненияи и коды
|
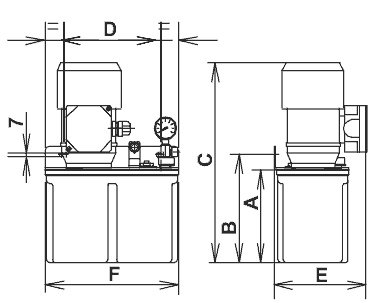
Размеры станций МРТ-200 (MPT-3(6)-NY-200-25 с пластиковым баком
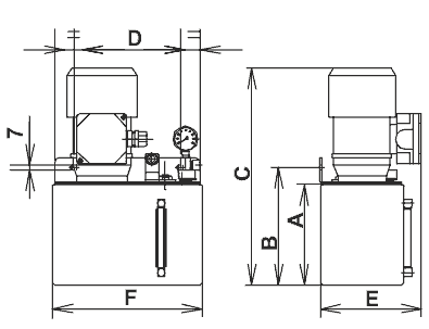
MPT-6-LA-200-25 с металлическим баком)
| Станция | A | B | C | D | E | F | Масса |
| MPT-3-NY | 155 | 181 | 335 | 167 | 165 | 230 | 5,3 кг |
| MPT-6-NY | 250 | 276 | 430 | 167 | 165 | 230 | 5,5 кг |
| MPT-3-LA | 156 | 182 | 335 | 167 | 165 | 236 | 7,5 кг |
![]() Размеры станции смазочной MPT-200 с пластиковым баком |
![]() Размеры станции смазочной MPT-200 с металлическим баком |
По требованию можно использовать специальные напряжения или однофазные напряжения 230В/50Гц. В этом случае в код заказа нужно добавлять напряжение.
Пример: MPT-6-NY-200-25 Код 60.821.2 230В/50Гц

Станция смозочная MPT-3-NY-200-25 (60.821.1)

